Neubau Haus für Musik, Potsdam
In der Potsdamer Schwertfegerstraße entstand das „Haus für Musik“. Stattfinden sollen in dem Neubau von nun an Unterricht, Proben und Aufführungen. Mit nur 7 Metern Breite und einer Grundfläche von 165 Quadratmetern ist es zwar das kleinste Gebäude im gesamten Block, architektonisch dennoch ein ganz besonderer Blickfang. Das Gebäude gliedert sich in Sockelzone, einen Hauptbaukörper und eine Dachebene. Gestalterisch verbinden sich Offenheit mit Funktionalität. Während die Nachbargebäude mit ihren traditionellen Fassaden geschlossen wirken, setzt das „Haus für Musik“ auf Transparenz: Die Fassade besteht aus mehreren sich überlagernden Schichten: Die Doppelverglasung macht das Innere des Gebäudes sichtbar und einladend. Für die Verschattung sorgt eine vorgehängte, dreidimensionale, grafische Fassade aus Sternenelementen. Im Gebäudeinneren verbirgt sich ein Konzept, das speziell auf die akustischen Anforderungen eines Musikhauses abgestimmt ist. Um eine ideale Klangqualität zu gewährleisten, sind die Übungsräume als Raum-in-Raum-Systeme gedacht und mit Akustik Installationen an Wänden und Decken versehen.
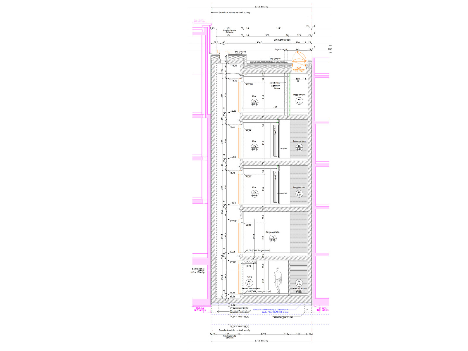
Knapp über dem normalen Grundwasserspiegel wird der hochwertig genutzte Keller als
WU-Konstruktion mit Frischbetonverbundfolie hergestellt. Vom Keller in das Erdgeschoss führt eine Treppe aus nur 9 cm hohen Sichtbetonkragstufen. Die Geschossdecken der Obergeschosse spannen von Brandwand zu Brandwand und die Obergeschosse wurden ohne Querwände konzipiert. Im 3. Obergeschoss entwickelt sich das schräge Glasdach aus der straßenseitigen Glasfassade. Um sichtbare Tragstrukturen direkt hinter dem Glas zu vermeiden, wird die Geschossdecke über dem 2.Obergeschoss über eine Zugstütze an einen Querbalken im Dach hochgehängt. Im Außenbereich werden extrem schlanke Sichtbetonfertigteile eingesetzt, um straßenseitig am zurückspringenden Eingang die Kontur des Baukörpers zu schließen oder rückseitig den Garten zu zonieren.





