Generalinstandsetzung des denkmalgeschützten Premierenkinos der DDR
Das 1964 gebaute und als „Mehrzweckbau“ von Josef Kaiser entworfene Gebäude beherbergte ein Kino, eine Stadtbibliothek, sowie Räume der „Nationalen Front“. Im Laufe seiner Nutzung hat sich das Kino International zu einem Ort für Veranstaltungen entwickelt und wird zunehmend für Vorträge, Symposien, Kongresse und Tagungen genutzt.
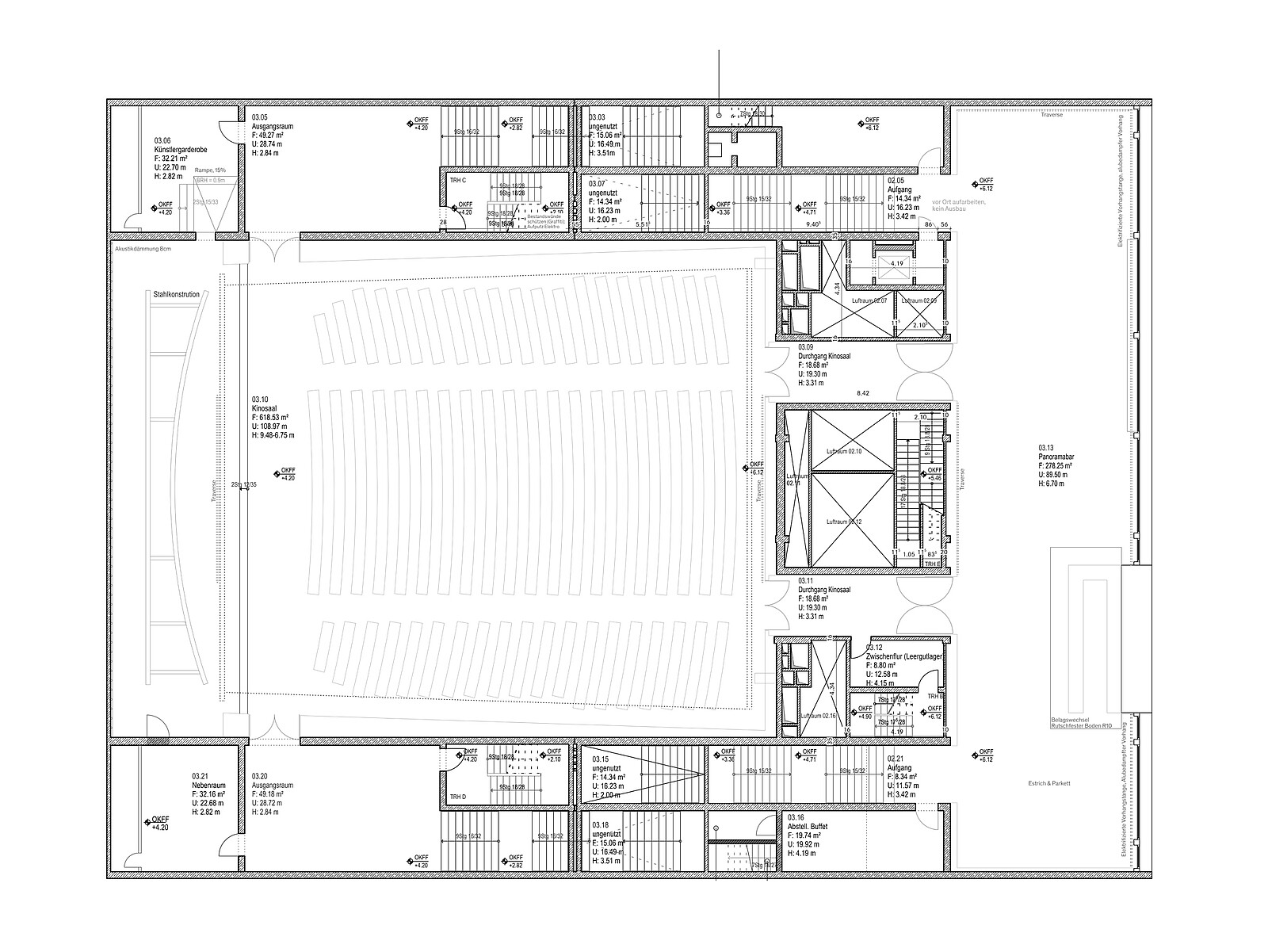
Das Gebäude hat maximale Grundrissabmessungen von 46,90 x 35,265 m und eine Höhe über dem Straßenniveau von 17,36 m. Im Bereich des Eingangs kragen die Obergeschosse ca. 9,0 m über das unterkellerte Erdgeschoss aus. Die Gründung erfolgt über eine massive Stahlbetonbodenplatte mit einer Stärke von 1,0 m und Einzelfundamenten aus Stahlbeton. Die Deckenlasten im Bereich unter dem Kinosaal werden über Einzelstützen in die Einzelfundamente abgetragen. Der Kinosaal wird im Dachraum durch Stahlfachwerkbinder in Längsrichtung überspannt, die die auskragenden Decken über dem Erdgeschoss zur Straße aufnehmen.
Neben der denkmalgerechten Sanierung und Instandsetzung des Gebäudes entstand ein neuer Fluchtweg. Außerdem wurde eine Entrauchung über das mit Brandabschottungen über dem Kinosaal geplant. Aufgrund der Komplettsanierung der Haustechnik wurden zusätzlich aufwendige Wand- und Deckendurchbrüche nötig. Darüber hinaus erfolgt die Aufarbeitung denkmalgeschützter Bauteile zum Erhalt des architektonischen, kulturellen wie historischen Wertes des Gebäudes und seiner Ausstattung.
