Pavillon am Haus der Kulturen der Welt
Für das Haus der Kulturen der Welt in Berlin wurde in dessen unmittelbarer Nähe im Tiergarten ein temporärer Pavillon realisiert. Als Auftakt einer Reihe jährlich wechselnder Bauwerke versteht sich die Installation als offener Ort für Begegnung, Austausch und Veranstaltungen im öffentlichen Raum. Der Pavillon ist auf eine Nutzungsdauer von einer Sommersaison ausgelegt und so konzipiert, dass er vollständig zurückgebaut und an anderer Stelle wieder aufgebaut werden kann.
Der Entwurf basiert auf einem gleichseitigen Dreieck mit je rund 15 Metern Seitenlänge. Die Geometrie ermöglicht eine in alle Richtungen gleichwertige Orientierung verankert den Pavillon wie selbstverständlich zwischen Wasserbecken, Baumgruppen, Parkwiese und dem Haus der Kulturen der Welt.
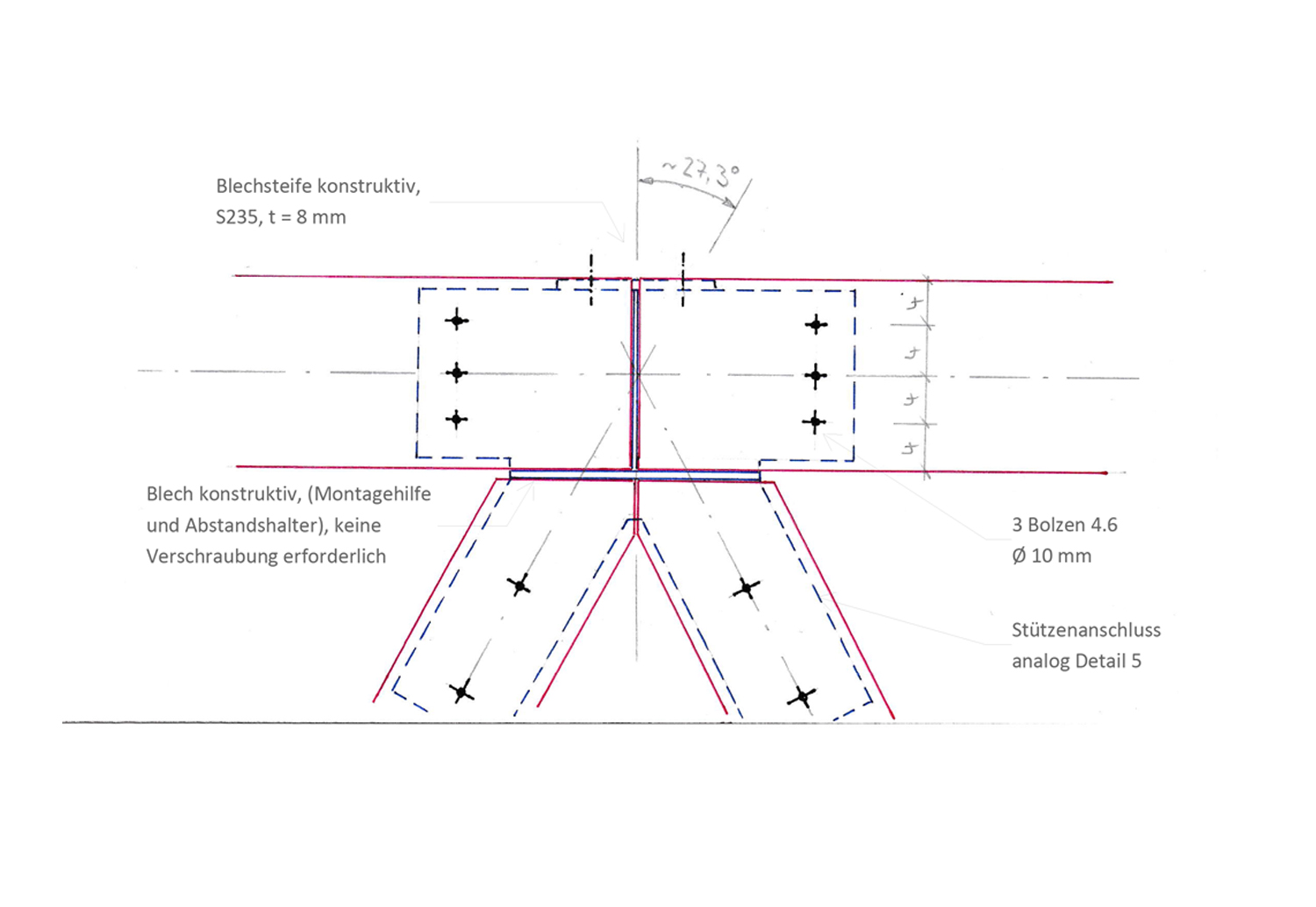
Die Tragstruktur besteht aus einer Holzkonstruktion mit zwei Ebenen. In der Dachebene spannt ein Gitterrost aus Rand-, Haupt- und Nebenträgern, der von schräg gestellten Fachwerkstützen getragen wird. Die Stützen sind gelenkig angeschlossen und auf Schraubfundamenten gegründet. Durch diese Art der Gründung werden Eingriffe in den Baugrund auf ein Minimum reduziert und ein rückstandsloser Abbau ermöglicht.
Den oberen Abschluss bildet eine pneumatisch gestützte Membran in Form eines Luftkissens. Ihre räumliche Ausformung entsteht aus dem Zusammenspiel von Membranvorspannung, vorgespannten Gurten und einem konstanten Überdruck. Durch die exzentrische Lage der Krafteinleitung entstehen zusätzliche Beanspruchungen in den Randträgern, die konstruktiv berücksichtigt und über Koppelstäbe in die Tragstruktur überführt werden. Die Ausbildung der Anschlüsse folgt den jeweiligen Lagerungsbedingungen und ermöglicht die erforderlichen Bewegungen innerhalb des Systems.
Die Fassade ist vollständig offen, der Pavillon von allen Seiten zugänglich. Ein umlaufender Vorhang aus bunten Kunststofflamellen bildet eine leichte, durchlässige Raumgrenze. Im Inneren befindet sich eine Art Manege mit frei bespielbarer Bühnenfläche und umlaufenden Sitzmöglichkeiten.
Die Konstruktion besteht aus vorgefertigten Bauteilen mit lösbaren Verbindungen. In Kombination mit den Schraubfundamenten ermöglicht dies eine effiziente Montage, einen vollständigen Rückbau sowie eine Wiederverwendung der eingesetzten Elemente.
©Christoph Mayer / raumlabor
© EiSat GmbH
