Neubau eines Wohnhauses in Holzbauweise
Auf einem 3.900 m² großen Grundstück am Waldrand von Zehdenick entstand ein Wohnhaus in Holz-Hybridbauweise. Der Neubau kombiniert einen Stahlbetonkeller in WU‐Konstruktion mit einem darüberliegenden Holzbau aus Brettsperrholzdecken, -dach und Holztafelwänden. Die sichtbaren Holz- und Betonoberflächen sowie die klare Gebäudekubatur prägen die Architektur. Diese Sichtoberflächen, große Öffnungen und stützenfreie Bereiche stellten hohe Anforderungen an die Tragwerksplanung und deren konstruktive Lösungen.
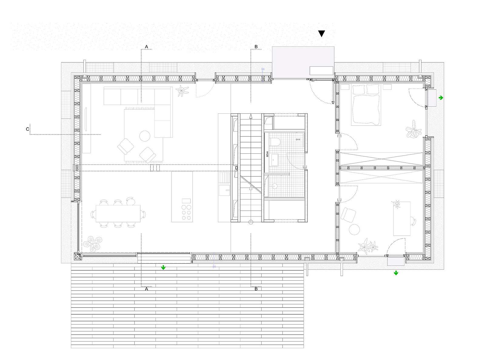
Das Haus umfasst drei Geschosse und wird über einen zentralen, von oben belichteten Funktionskern erschlossen. Wohn- und Küchenbereich öffnen sich im Erdgeschoss zur Südterrasse, im Obergeschoss sorgen die Loggia und großformatige Fenster für eine starke visuelle Verbindung zum Garten. Das Tragwerk setzt sich aus vornehmlich einachsig tragenden Brettsperrholzplatten mit doppelter Decklage auf Linienlagern, teils stützenfrei mittels Stahlträgern als Unterfangung zusammen. Quer- und Längswände übernehmen die Aussteifung; der Kellerkasten wirkt als steife Einspannebene. Zur sicheren Ableitung der Windlasten waren diverse Zug- und Schubverankerungen erforderlich.
Die Holzrahmenbauwände stehen auf einer 30 cm hohen Aufkantung der Kellerwände, die zugleich dem konstruktiven Holzschutz, insbesondere gegen Spritzwasser dient. Fassaden und Dach werden als hinterlüftete Konstruktionen mit Lärchenlattung und Solarpaneelen ausgeführt, deren Lasten in der Planung direkt berücksichtigt wurden.
