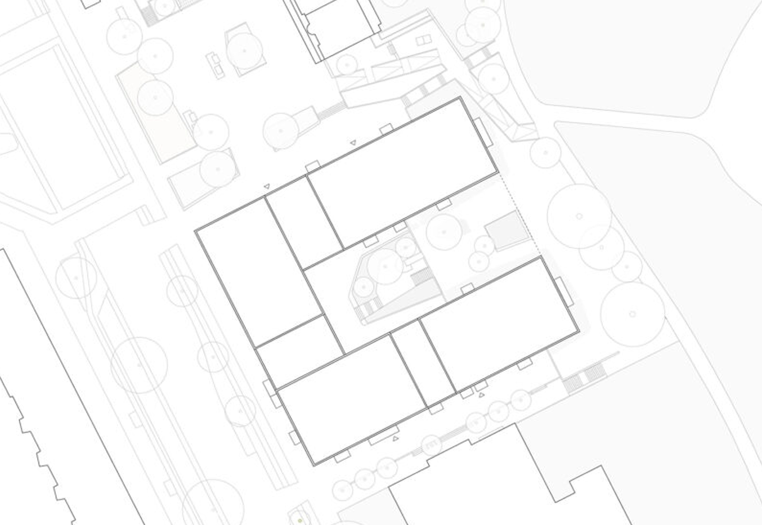
Wohn- und Gewerbekomplex Rathenower Straße
In Berlin-Moabit entstand zwischen Rathenower Straße und Fritz-Schloß-Park ein Wohn- und Geschäftsbau mit insgesamt 91 Wohnungen und 25 Gewerbeeinheiten. Der Gebäudekomplex ist als hybrider Block mit vier unterschiedlichen Baukörpern – Wohnturm, Gewerbehaus, Clusterhaus und Wohnzeile – ausgebildet, die sich um einen privaten Innenhof gruppieren. Die Höhenentwicklung variiert zwischen vier und acht Geschossen. Eine ansteigende Hofebene bindet das Grundstück direkt an den angrenzenden Park an.
Das Tragwerk wurde als Stahlbetonskelettbau konzipiert, um eine flexible Nutzung und variable Grundrissgestaltung zu ermöglichen. Die Decken spannen bei Achsabständen von bis zu sieben Metern und wurden so dimensioniert, dass eine wirtschaftliche Ausführung in Filigranbauweise möglich ist. Die vertikale Lastabtragung erfolgt über Stützen und Wandscheiben, während die Aussteifung des Gebäudes über mehrere massive Treppenhaus- und Aufzugskerne sichergestellt wird.
Besondere Anforderungen ergaben sich aus der Integration einer Parkgarage im Gebäudekomplex. Um die erforderlichen Spannweiten und Durchfahrtsbreiten zu gewährleisten, wurden einzelne Stützen aus den Obergeschossen über Unterzüge abgefangen. Auch im Bereich der Fassaden wurden Stützen gezielt reduziert, um großzügige und offene Erdgeschosszonen zu ermöglichen.
Um in der Fassadenansicht den Skelettcharakter des Tragwerkes hervorzuheben, wurde die horizontale Deckenstirn thermisch entkoppelt in Sichtbeton hergestellt.
Die Gründung erfolgt über eine gebettete Stahlbetonbodenplatte. Aufgrund vorhandener Auffüllungen war ein Bodenaustausch erforderlich, um die notwendigen Tragfähigkeiten sicherzustellen. Unterschiedliche Gebäudeteile mit variierender Höhe wurden konstruktiv so ausgebildet, dass Setzungsunterschiede minimiert werden.
Eine besondere Herausforderung stellte die im Baufeld verlaufende Fernwärmeleitung dar. In Abstimmung mit den beteiligten Fachplanungen wurde diese in einen Technikgang innerhalb der Unterkellerung integriert, wodurch sowohl die Erschließung als auch die Wartung langfristig sichergestellt werden konnten.
Das Untergeschoss wurde in wasserundurchlässiger Bauweise ausgeführt. Ergänzend wurden konstruktive Maßnahmen zur Begrenzung von Rissbildung und Zwangsspannungen berücksichtigt.
Zudem wurde sowohl die Planung eines in den Hang eingebundenen Müllplatzes als auch die Umplanung für das Treppenbauwerk auf dem nördlich angrenzenden Stadtplatz und den angepassten Kellerzugang der südlich angrenzenden Kita übernommen.
